×

Compacting Table

COMPACTING TABLE

Local manufacturing.
Robust unit to work 24h.
Short term amortization.
Tailormade construction to suit customer requeriments.
Technical Assitance.
Original spares in stock.

お見積り依頼

Inductotherm Group Products

Features

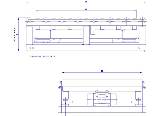
Process: Multiple rolls enable the boxes to move along the compacting table. When the box it’s positioned in the table, the operator presses the pedal and the 4 compressed air elevators, lift the frame. That way the box does not touch the rolls and cannot move along the table. When the frame reachs the limit swtich, the 2 motors start vibrating until the com- pacting is done.

Then the operator frees the pedal, the frame goes down, the motors stop vibrating, and the box in contact now with the rolls, can be removed out of the table.

Tech Specs

Ondarlan Compacting Table
MODELSIZES 1/2 BOXES
1600 X 900 X 300
2900 X 1.200 X 600
31.200 X 1.500 X 900
41.800 X 1.800 X 900
52.000 X 2.000 X 900
62.500 X 2.500 X 900
73.000 X 1.500 X 1.000